4.6 / 5 7 reviews 

Beukenboomsweg 31, GUTTECOVEN

€275.000,-
k.k.
6143 AB GUTTECOVEN
Vraag bezichtiging aan Download brochure
  • Prijs€275.000,- k.k.
  • Woonoppervlakte88 m²
  • Type2-onder-1-kap
  • Slaapkamers3

Omschrijving

Deze fraaie twee-onder-een-kapwoning met aanbouw, riante tuin en garage is gelegen in het kerkdorp "Guttecoven".
De woning is goed geisoleerd en voorzien van 8 zonnepanelen.

Leuk om te weten:
- Bouwjaar 1950 (conform BAG), perceeloppervlakte 292m² (conform kadaster);
- Woonoppervlakte ca. 88m² (NEN 2580 meetrapport aanwezig), 8m² overige inpandige ruimte;
- Gestraalde gevels;
- Kunststof kozijnen met HR glas;
- Dak en gevels geïsoleerd;
- Energielabel B;
- Aanvaarding in overleg.

INDELING:

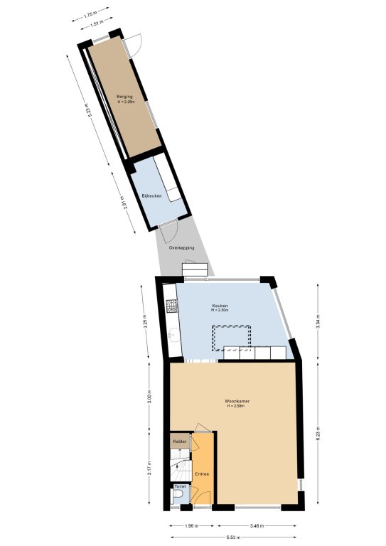
Souterrain:
Betegelde provisiekelder.

Begane grond:
Hal/entree, moderne meterkast, toiletruimte met zwevend closet.
L-vormige woonkamer met vloerverwarming en riante aanbouw met leefkeuken (2022) voorzien van 5-pits inductiekooktoestel, wasemkap, een combimagnetron en een oven, grote koelkast, vriezer en vaatwasser.
Deur naar diepe, omsloten tuin met tuinhuis en diverse tuinbergingen.
Oprit en garage met smeerput en elektrische poort.

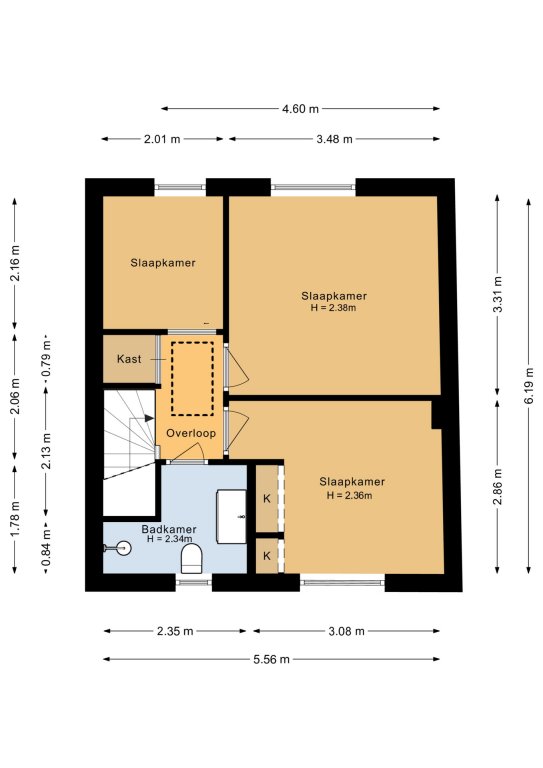
Eerste verdieping:
Overloop met bergkast en drie slaapkamers met laminaatvloeren, respectievelijk:
Slaapkamer 1: ca. 3.48 x 3.31 m voorzien van airconditioning (huur) en rolluik.
Slaapkamer 2: ca. 3.08 x 2.86 m voorzien van airconditioning (eigendom) en rolluik.
Slaapkamer 3: ca. 2.16 x 2.01 m voorzien van rolluik.
Badkamer met douche, vaste wastafel met meubel en tweede toilet.

Tweede verdieping:
Middels vlizotrap te bereiken geïsoleerde bergzolder, alwaar standplaats c.v.-installatie Bosch (ca. € 45,90 per maand, gehuurd t/m augustus 2026).

De waarborgsom/bankgarantie is 10% van de koopsom. De koper dient deze, indien de verkoper en koper dit overeenkomen, binnen 2 weken nadat het financieringsvoorbehoud is verlopen bij de desbetreffende notaris te deponeren.
Ter bescherming van de belangen van zowel koper als ook verkoper wordt uitdrukkelijk gesteld dat een koopovereenkomst met betrekking tot deze onroerende zaak eerst dan tot stand komt nadat koper en verkoper de koopovereenkomst hebben getekend (schriftelijkheidsvereiste).
Indien c.v. ketel en/of warmwatervoorziening een huurtoestel is, dient koper de huurovereenkomst over te nemen.

Alle door ons kantoor verstrekte informatie omtrent onroerende zaken, moet beschouwd worden als een uitnodiging om in onderhandeling te treden, en is geheel vrijblijvend! Alle vermelde maten en afmetingen zijn slechts bij benadering. Aan deze beperkte info kunnen geen rechten worden ontleend. Indien in enige documentatie of op enige website informatie staat die niet overeen komt met de werkelijkheid, dan geldt de feitelijke situatie waarin de woning zich bevindt, zoals koper deze tijdens de bezichtiging heeft kunnen waarnemen, en wordt de woning in deze feitelijke situatie/staat verkocht. Een (eventueel) bijgevoegde plattegrond dient uitsluitend als globale indicatie/visualisatie. Hieraan kunnen uitdrukkelijk geen rechten worden ontleend.

De makelaar Ralf Last nodigt u uit voor een bezichtiging.

Lees meer
Contact
Demo Makelaardij o.g.

Kerkstraat 1
1111AA Sittard

  0854012944
  monitoring@mediazo.nl

Specificaties
Afmetingen
  • Woonopp. 88m²
  • Perceelopp. 292m²
  • Inhoud 361m³
Algemeen
  • Beschikbaarheid In overleg
  • Huisdieren gewenst Nee
Bouw
  • Soort Woningen
  • Type 2-onder-1-kap
  • Bouwjaar 1950
Energie
  • Energielabel B
  • CV-ketel Combi
  • CV-ketel eigendom Nee
  • CV-ketel brandstof Gas
  • CV-ketel warmwater Ja
  • Aanwezige isolatie Dakisolatie, glasisolatie
Indeling
  • Slaapkamers 3
  • Aparte douche Nee
  • Garage Ja
  • Kelder Ja, 1m²
  • Tuin Ja
  • Tuin ligging Noordwest
  • Balkon Nee
  • Dakterras Nee
Kadastrale gegevens
  • Gemeente Limbricht
  • Sectie 1 C
  • Sectie 1 perceelnummer 4040
Overig
  • Onderhoud binnen Goed
  • Onderhoud buiten Goed
Voorziening
  • Parkeerplaats Ja
  • Lift Nee
  • Airco Ja
  • Openhaard Nee
  • Zwembad Nee
  • Zonnepanelen Ja
Lees meer
Klik hier om de kaart te bekijken

Afbeeldingen

Plattegrond

Documenten

Vraag bezichtiging aan

Veld niet correct
Veld niet correct
Veld niet correct
Veld niet correct

Brochure aanvragen

Veld niet correct
Veld niet correct
Veld niet correct
Veld niet correct
Veld niet correct
Veld niet correct
Veld niet correct