4.6 / 5 7 reviews 

Vleetkamp 20, LANDGRAAF

€385.000,-
k.k.
6374 NS LANDGRAAF
Vraag bezichtiging aan Download brochure
  • Prijs€385.000,- k.k.
  • Woonoppervlakte105 m²
  • TypeBungalow
  • Slaapkamers2

Omschrijving

Welkom bij Vleetkamp 20 te Landgraaf – comfortabel wonen in Parkheide!
In de geliefde wijk Parkheide ligt deze verzorgde en verrassend ruime semi bungalow op een perceel van maar liefst
380 m². Met een praktische indeling, eigen oprit, garage én een fijne achtertuin met overkapping is dit een ideale woning voor doorstromers of senioren.

Leuk om te weten:
- Bouwjaar: 1995 (conform BAG) | Perceel: 380 m² (conform kadaster);
- Woonoppervlakte ca. 105 m² | Overige inpandige ruimte ca. 16 m²;
- Inhoud ca. 413 m³;
- Huur c.v. installatie circa € 40,91 per maand (bouwjaar 2013);
- Slapen en wonen mogelijk op de begane grond;
- Gedeeltelijk v.v. rolluiken;
- Energielabel B;
- Meetrapport en plattegronden beschikbaar.

INDELING:

Begane grond:
Via de entree betreedt u een royale, betegelde hal in stijlvolle antraciettinten. Hier bevinden zich de meterkast, een volledig betegelde toiletruimte met fonteintje en de trap naar de eerste verdieping.

De lichte en sfeervolle woonkamer met eetgedeelte is voorzien van een parketvloer en biedt direct toegang tot de achtertuin. De open keuken in hoekopstelling is compleet uitgerust met diverse inbouwapparatuur, waaronder een oven/magnetron, inductiekookplaat, afzuigkap en koelkast. Via de keuken is de praktische trapkast te bereiken.
Via de gang is de badkamer bereikbaar welke is voorzien van ligbad, separate douche, wastafel en douche.

Extra pluspunt is de inpandige garage met elektrische sectionaalpoort. Aansluitend vindt u de praktische wasruimte met aansluitingen voor wasmachine en droger.

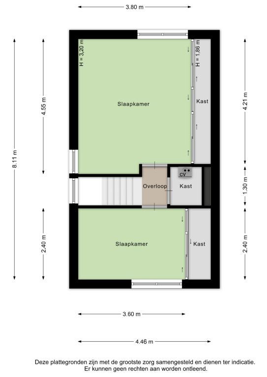
Eerste verdieping:
De overloop biedt toegang tot twee ruime slaapkamers, beide voorzien van een nette Novilon loer en vaste kasten. Daarnaast is er een ruime bergkast met opstelling van de c.v.-ketel.

Voortuin:
De verzorgde voortuin beschikt over een eigen oprit, waardoor u altijd parkeergelegenheid op eigen terrein heeft.

Achtertuin:
De achtertuin is netjes aangelegd en biedt volop privacy. Onder de ruime overkapping kunt u heerlijk ontspannen en genieten van het buitenleven. Daarnaast is er een tuinhuis aanwezig voor extra bergruimte.

Kortom: een instapklare woning met garage, tuin en volop comfort, gelegen in een rustige en prettige woonomgeving. Een bezichtiging is zeker de moeite waard!

Overige informatie
De gebruikelijke waarborgsom/bankgarantie is 10% van de koopsom. De koper dient deze, indien de verkoper en koper dit overeenkomen, binnen 2 weken nadat het financieringsvoorbehoud is verlopen bij de desbetreffende notaris te deponeren.

Toelichtingsclausule NEN2580
De Meetinstructie is gebaseerd op de NEN2580. De Meetinstructie is bedoeld om een meer eenduidige manier van meten toe te passen voor het geven van een indicatie van de gebruiksoppervlakte. De Meetinstructie sluit verschillen in meetuitkomsten niet volledig uit, door bijvoorbeeld interpretatiever- schillen, afrondingen of beperkingen bij het uitvoeren van de meting.

Schriftelijkheidsvereiste
Conform artikel 7:2 Burgerlijk Wetboek, is er pas sprake van een rechtsgeldige koopovereenkomst als de particuliere verkoper en de particuliere koper de koopovereenkomst hebben ondertekend. Een mondelinge overeenstemming tussen de particuliere verkoper en de particuliere koper is niet rechts- geldig.

Disclaimer
Alle door ons kantoor verstrekte informatie omtrent onroerende zaken, moet beschouwd worden als een uitnodiging om in onderhandeling te treden, en is geheel vrijblijvend! Alle vermelde maten en afmetingen zijn slechts bij benadering. Aan deze beperkte informatie kunnen geen rechten worden ontleend. Indien in enige documentatie of op enige website informatie staat die niet overeen komt met de werkelijkheid, dan geldt de feitelijke situatie waarin de woning zich bevindt, zoals koper deze tijdens de bezichtiging heeft kunnen waarnemen, en wordt de woning in deze feitelijke situatie/staat verkocht. Een (eventueel) bijgevoegde plattegrond dient uitsluitend als globale indicatie/visualisatie. Hieraan kunnen uitdrukkelijk geen rechten worden ontleend.

Uw makelaar Roy Ubachs nodigt u graag uit voor een bezichtiging.

Lees meer
Contact
Demo Makelaardij o.g.

Kerkstraat 1
1111AA Sittard

  0854012944
  monitoring@mediazo.nl

Specificaties
Afmetingen
  • Woonopp. 105m²
  • Perceelopp. 380m²
  • Inhoud 413m³
Algemeen
  • Beschikbaarheid In overleg
  • Huisdieren gewenst Nee
Bouw
  • Soort Woningen
  • Type Bungalow
  • Bouwjaar 1995
Energie
  • Energielabel B
  • CV-ketel Combi
  • CV-ketel eigendom Nee
  • CV-ketel brandstof Gas
  • CV-ketel warmwater Ja
  • Aanwezige isolatie Dakisolatie, muurisolatie, vloerisolatie
Indeling
  • Slaapkamers 2
  • Aparte douche Nee
  • Garage Ja
  • Kelder Nee
  • Tuin Nee
  • Balkon Nee
  • Dakterras Nee
Kadastrale gegevens
  • Gemeente Ubach over worms
  • Sectie 1 A
  • Sectie 1 perceelnummer 5020
Overig
  • Onderhoud binnen Goed
  • Onderhoud buiten Goed
Voorziening
  • Parkeerplaats Nee
  • Lift Nee
  • Airco Nee
  • Openhaard Nee
  • Zwembad Nee
Lees meer
Klik hier om de kaart te bekijken

Afbeeldingen

Plattegrond

Documenten

Vraag bezichtiging aan

Veld niet correct
Veld niet correct
Veld niet correct
Veld niet correct

Brochure aanvragen

Veld niet correct
Veld niet correct
Veld niet correct
Veld niet correct
Veld niet correct
Veld niet correct
Veld niet correct