4.6 / 5 7 reviews 

Kasperenstraat 21 A, KERKRADE

€109.000,-
k.k.
6466 BD KERKRADE
Vraag bezichtiging aan Download brochure
  • Prijs€109.000,- k.k.
  • Woonoppervlakte60 m²
  • TypeTussenwoning
  • Slaapkamers1

Omschrijving

Welkom bij de Kasperenstraat 21-a te Kerkrade.
Bent u op zoek naar een compacte en praktische woning op een centrale locatie? Dan is deze woning aan de Kasperenstraat 21-a zeker het bekijken waard. Met een woonoppervlakte van ca. 60 m², energielabel B en een functionele indeling biedt deze woning een uitstekende basis voor starters of alleenstaanden.

De woning is gelegen in een rustige woonomgeving met diverse voorzieningen zoals winkels, openbaar vervoer en uitvalswegen binnen handbereik.

PROJECTNOTARIS: Burgemeestre & Partners Notariaat

Leuk om te weten:
- Bouwjaar: 1994 (conform BAG);
- Woonoppervlakte ca. 60 m² (NEN 2580 meetrapport aanwezig);
- Energielabel B;
- Aanvaarding: in overleg.

INDELING

Begane grond:
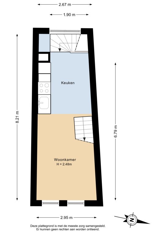
Via de overdekte entree bereikt u de royale, volledig betegelde hal met meterkast en toegang tot de deels betegelde toiletruimte met staand toilet en fonteintje. Vanuit de hal leidt de trap naar de eerste verdieping.

Eerste verdieping:
Op de eerste verdieping bevindt zich de woonkamer met een open, eenvoudig uitgevoerde keuken. De ruimte is praktisch ingericht en biedt diverse indelingsmogelijkheden. Vanuit de woonkamer bereikt u middels een vaste trap de tweede verdieping.

Tweede verdieping
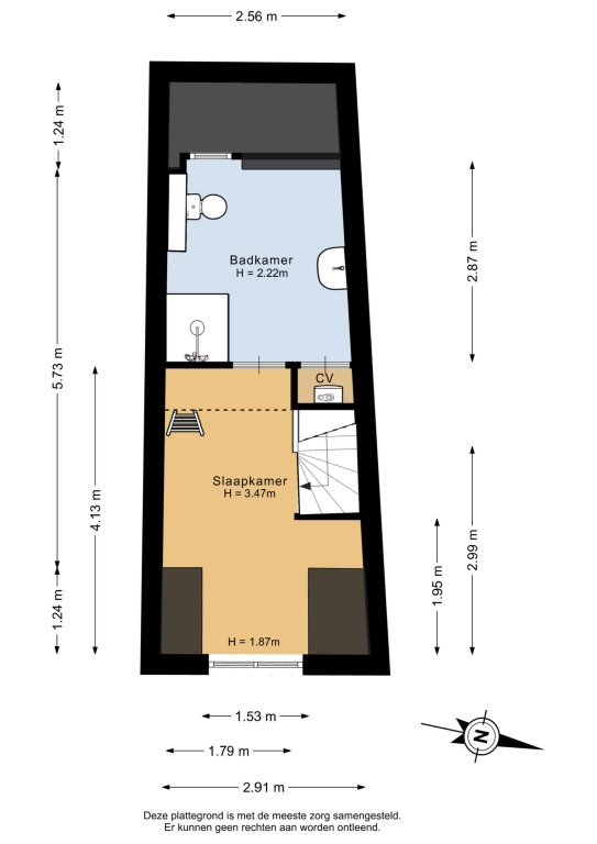
Op deze verdieping bevinden zich de slaapkamer en de volledig betegelde badkamer, voorzien van een douche, toilet en wastafel. Vanuit de badkamer is de opstelling van de cv-ketel bereikbaar. In de slaapkamer heeft u middels een ladder toegang tot een praktische, kleine bergruimte.

Buitenruimte
De woning beschikt niet over een tuin of balkon.

Kortom: een praktische en betaalbare woning met alle basisvoorzieningen, ideaal voor wie eenvoudig en comfortabel wil wonen op een centrale locatie.

Bent U benieuwd naar welke renovatie mogelijkheden door verkoper bij deze woning worden aangeboden? Neem dan contact met ons op!

De waarborgsom/bankgarantie is 10% van de koopsom. De koper dient deze, indien de verkoper en koper dit overeenkomen, binnen 2 weken nadat het financieringsvoorbehoud is verlopen bij de desbetreffende notaris te deponeren.
Ter bescherming van de belangen van zowel koper als ook verkoper wordt uitdrukkelijk gesteld dat een koopovereenkomst met betrekking tot deze onroerende zaak eerst dan tot stand komt nadat koper en verkoper de koopovereenkomst hebben getekend (schriftelijkheidsvereiste).
Indien c.v. ketel en/of warmwatervoorziening een huurtoestel is, dient koper de huurovereenkomst over te nemen.

Alle door ons kantoor verstrekte informatie omtrent onroerende zaken, moet beschouwd worden als een uitnodiging om in onderhandeling te treden, en is geheel vrijblijvend! Alle vermelde maten en afmetingen zijn slechts bij benadering. Aan deze beperkte info kunnen geen rechten worden ontleend. Indien in enige documentatie of op enige website informatie staat die niet overeen komt met de werkelijkheid, dan geldt de feitelijke situatie waarin de woning zich bevindt, zoals koper deze tijdens de bezichtiging heeft kunnen waarnemen, en wordt de woning in deze feitelijke situatie/staat verkocht. Een (eventueel) bijgevoegde plattegrond dient uitsluitend als globale indicatie/visualisatie. Hieraan kunnen uitdrukkelijk geen rechten worden ontleend.

De makelaar Ray van der Venne nodigt u uit voor een bezichtiging.

Lees meer
Contact
Demo Makelaardij o.g.

Kerkstraat 1
1111AA Sittard

  0854012944
  monitoring@mediazo.nl

Specificaties
Afmetingen
  • Woonopp. 60m²
  • Perceelopp. 26m²
  • Inhoud 217m³
Algemeen
  • Beschikbaarheid In overleg
  • Huisdieren gewenst Nee
Bouw
  • Soort Woningen
  • Type Tussenwoning
  • Bouwjaar 1994
Energie
  • Energielabel B
  • CV-ketel hr
  • CV-ketel eigendom Ja
  • CV-ketel warmwater Nee
Indeling
  • Slaapkamers 1
  • Aparte douche Nee
  • Garage Nee
  • Kelder Nee
  • Tuin Nee
  • Balkon Nee
  • Dakterras Nee
Kadastrale gegevens
  • Gemeente Kerkrade
  • Sectie 1 H
  • Sectie 1 perceelnummer 2211
Overig
  • Onderhoud binnen Matig
Voorziening
  • Parkeerplaats Nee
  • Lift Nee
  • Airco Nee
  • Openhaard Nee
  • Zwembad Nee
Lees meer
Klik hier om de kaart te bekijken

Afbeeldingen

Plattegrond

Vraag bezichtiging aan

Veld niet correct
Veld niet correct
Veld niet correct
Veld niet correct

Brochure aanvragen

Veld niet correct
Veld niet correct
Veld niet correct
Veld niet correct
Veld niet correct
Veld niet correct
Veld niet correct