4.6 / 5 7 reviews 

Broenkoel 4, KERKRADE

€125.000,-
k.k.
6464 GV KERKRADE
Vraag bezichtiging aan Download brochure
  • Prijs€125.000,- k.k.
  • Woonoppervlakte34 m²
  • TypeVrijstaand
  • Slaapkamers1

Omschrijving

Wonen op een unieke plek: Tiny House Carisborg (Kerkrade)
Wonen in het eerste Tiny House project van Limburg, midden in het groen, met uitzicht op de toekomst.
In het rustige en groene Carisborg in Kerkrade ligt een bijzonder woonconcept dat zelden beschikbaar komt. Een kleinschalige community van slechts vijf woningen, waar rust, natuur en bewust wonen samenkomen.
Hier woon je niet alleen compact, maar vooral vrij.

Dit Tiny house maakt onderdeel uit van het eerste officiële Tiny house project in Limburg. De locatie, een voormalige sportlocatie die is getransformeerd tot een natuurlijke woonomgeving, biedt:
- vrij uitzicht en veel groen
- rust en privacy
- directe verbinding met natuurgebied
Dit is geen standaard woonwijk, maar een plek waar je écht tot rust komt.

Toekomstbestendig wonen
Het project is gestart als pilot en heeft zich inmiddels bewezen als succesvol woonconcept.
De gemeente Kerkrade heeft daarom aangegeven:
de vergunning te verlengen met 10 jaar
en toe te werken naar een permanente woonbestemming binnen het omgevingsplan
Dit maakt wonen op Carisborg niet alleen bijzonder, maar ook toekomstgericht.

Het concept: klein wonen, groots leven
Tiny houses staan voor eenvoud, duurzaamheid en vrijheid. Dit project is opgezet als pilot waarbij bewoners samen met de gemeente experimenteren met een nieuwe manier van wonen.
Kenmerken van het concept:
• compact en slim ingedeeld wonen (max. ca. 50 m²)
• sterk community gevoel
• duurzaamheid en lage ecologische voetafdruk
• vrijheid en eenvoud
• leven met aandacht voor je omgeving
• een kleinschalige community

Pioniers locatie met toekomstvisie
Het project Carisborg bestaat uit een kleinschalige opzet met slechts vijf woningen / zes plaatsen en is gestart als pilot van 5 jaar, met een verlenging van 10 jaar in het vooruitzicht en gesproken wordt over een permanente woonbestemming voorde woningen.
Daarnaast geldt deze locatie inmiddels als voorbeeldproject voor andere gemeenten in Limburg, die zich laten inspireren door dit woonconcept.
Je woont hier dus letterlijk in een vernieuwend en vooruitstrevend woonproject.

Het Tiny House
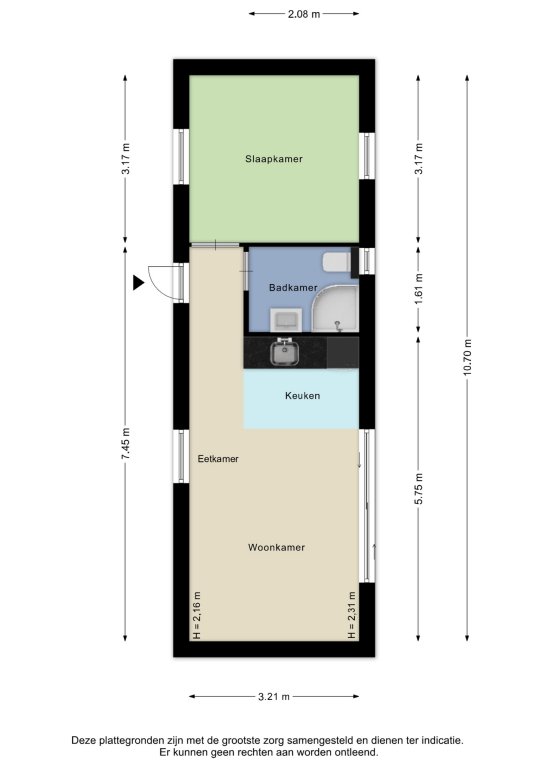
Dit verzorgd afgewerkte Tiny house combineert slim ruimtegebruik met comfortabel wonen. De woning beschikt over een totale oppervlakte van ca. 34 m² ingedeeld in een lichte woonkamer met airconditioning en een grote schuifpui, waardoor binnen en buiten naadloos in elkaar overlopen. De moderne open keuken met vaatwasser, 4-pits inductiekookplaat, afzuigkap en koelkast, sluit hier perfect op aan en zorgt voor een ruimtelijk geheel.
Verder is de woning voorzien van een praktische badkamer, een aparte slaapkamer en wordt deze verwarmd middels elektrische verwarming. Warm water wordt geleverd via een elektrische boiler. Dankzij de kunststof kozijnen met HR++ beglazing en aanwezige horren is het wooncomfort optimaal.
Het geheel is gelegen op een perceel van circa 150 m² met een prachtig groen uitzicht en beschikt over een eigen vlonder/terras, ideaal om in alle rust van de buitenruimte te genieten. Daarnaast zijn elektra en water volledig zelfstandig aangesloten tot in de woning.

Voor wie is dit ideaal?
- mensen die bewust en duurzaam willen leven
- rustzoekers die dichtbij natuur willen wonen
- starters die anders durven te wonen
- mensen die vrijheid belangrijker vinden dan vierkante meters

Belangrijk om te weten
Transparantie staat voorop:
• Het betreft een Tiny house binnen een pilotproject
• Standplaats via Vereniging Tiny House Carisborg
• Verenigingsbijdrage € 290,- per maand (incl. pacht)
• Kleinschalige community met gezamenlijke faciliteiten zoals fietsenstalling, centrale zitplaats, moestuin, parkeerplekken
• Financiering via hypotheek is doorgaans niet mogelijk
• Gericht op eigen middelen / alternatieve woonvorm
• Verplichte inschrijving bij gemeente en vereniging

Samengevat
• Unieke kans binnen eerste Tiny House project van Limburg
• Slechts 5 woningen (zeer beperkt aanbod)
• Groene en rustige ligging
• Toekomst richting permanente woonbestemming
• Duurzaam en vrij wonen

Disclaimer
Alle door ons kantoor verstrekte informatie omtrent onroerende zaken, moet beschouwd worden als een uitnodiging om in onderhandeling te treden, en is geheel vrijblijvend! Alle vermelde maten en afmetingen zijn slechts bij benadering. Aan deze beperkte informatie kunnen geen rechten worden ontleend. Indien in enige documentatie of op enige website informatie staat die niet overeen komt met de werkelijkheid, dan geldt de feitelijke situatie waarin de woning zich bevindt, zoals koper deze tijdens de bezichtiging heeft kunnen waarnemen, en wordt de woning in deze feitelijke situatie/staat verkocht. Een (eventueel) bijgevoegde plattegrond dient uitsluitend als globale indicatie/visualisatie. Hieraan kunnen uitdrukkelijk geen rechten worden ontleend.

Uw makelaar Marco Hanssen nodigt u graag uit voor een bezichtiging.

Lees meer
Contact
Demo Makelaardij o.g.

Kerkstraat 1
1111AA Sittard

  0854012944
  monitoring@mediazo.nl

Specificaties
Afmetingen
  • Woonopp. 34m²
  • Perceelopp. 150m²
  • Inhoud 126m³
  • Tuin oppervlakte 150m²
Algemeen
  • Beschikbaarheid In overleg
  • Huisdieren gewenst Nee
Bouw
  • Soort Woningen
  • Type Vrijstaand
  • Bouwjaar 2022
Energie
  • CV-ketel eigendom Nee
  • CV-ketel warmwater Nee
  • Aanwezige isolatie Dakisolatie, muurisolatie
Indeling
  • Slaapkamers 1
  • Aparte douche Nee
  • Garage Nee
  • Kelder Nee
  • Tuin Ja
  • Balkon Nee
  • Dakterras Nee
Kadastrale gegevens
  • Gemeente Kerkrade
  • Sectie 1 A
  • Sectie 1 perceelnummer 1000
Overig
  • Onderhoud binnen Goed tot uitstekend
  • Onderhoud buiten Goed
Voorziening
  • Parkeerplaats Nee
  • Lift Nee
  • Airco Nee
  • Openhaard Nee
  • Zwembad Nee
Lees meer
Klik hier om de kaart te bekijken

Afbeeldingen

Plattegrond

Documenten

Vraag bezichtiging aan

Veld niet correct
Veld niet correct
Veld niet correct
Veld niet correct

Brochure aanvragen

Veld niet correct
Veld niet correct
Veld niet correct
Veld niet correct
Veld niet correct
Veld niet correct
Veld niet correct